Domeniul vizat: Domeniul 3 - Asigurarea funcționării în bune condiții a grădinilor botanice universitare, a stațiunilor didactice, a bazelor de practică și a altor infrastructuri de susținere a activităților didactice, similare bazelor de practică, din cadrul universităților, folosite pentru instruirea studenților
Scopul Proiectului
Dezvoltarea unor spații dedicate pregătirii profesionale a studenților, în completarea activităților curriculare, susținând desfășurarea de activități cu rol didactic extra-curricular, dar și de activități de cercetare, centrate pe documentare, dialog, colaborare, schimb de idei între membrii comunității academice aparținând structurilor diferite ale Universității.
Obiective
Obiectiv 1. BiblioArHub Susținerea activității didactice și creșterea vizibilității bibliotecii universitare prin diversificarea ofertei de servicii, modernizarea, reorganizarea și transformarea sălii de lectură periodice într-un spațiu multifuncțional flexibil, dinamic și deplin angajat în procesul de învățare interactivă.
Obiectiv 2. BPHub Susținerea activităților didactice prin refuncționalizarea spațiului dedicat catedrei Departamentului Bazele Proiectării de Arhitectură (BPA) într-un hub dedicat cadrelor didactice și studenților pentru întâlniri, discuții, prezentări, consultații pe proiecte și concursuri.
Echipa
- Echipa de management
- Director de proiect: conf. dr. arh. Melania Dulămea
- Responsabil financiar – Florin Duna
- Responsabil achiziții – Petre Iorga
- Responsabil resurse umane – Adriana Nicolescu
- Echipa de implementare
- prof. dr. arh. Andra Panait
- conf. dr. arh. Ionuț Anton
- șef lucr. dr. arh. Alexandra Afrăsinei
- arh. Alexandru Barat
- drd. arh. Florin Pîndici
- drd. arh. Arthur O'Looney
- șef lucr. dr. arh. Alexandru Iatan
- asist. dr. arh. Anda Sfinteș
- bibliotecar Alexandra Turtilă
- referent Cristian Mijlai
- bibliotecar Ștefania Halmagi
Durata proiectului
10.04 2023 - 15.12 2023
Activități
A01 Organizarea unui workshop având drept scop găsirea unor soluții de amenajare a sălii de lectură periodice și spațiilor-anexă (BiblioArHub-ului) care răspund cel mai bine obiectivului. (O1)
A02 Elaborarea proiectului de amenajare a BiblioArHub-ului de către echipa de implementare cu implicarea studenților participanți la workshop. Proiectul are in vedere în primul rând valorizarea calităților spațiului existent, cu accent asupra luminii și orientării care îl definesc, în al doilea rând, determinarea unei zonificări foarte clare cu scopul de a elibera spațiul și a crea un sistem modular de configurare a mobilierului cu posibiliăți multiple de utilizare. (O1)
A03 Igienizarea, reabilitarea, amenajarea și echiparea sălii de lectură periodice și spațiilor-anexă ce compun BiblioArHub-ul (O1)
A04 Organizarea publicațiilor și elaborarea de materiale-suport pentru buna gestionare și utilizare a fondului documentar (O1)
A05 Lansarea BiblioArHub-ului ca spațiu multifuncțional, flexibil, dinamic și deplin angajat în procesul de învățare interactivă (O1)
A06 Elaborarea proiectului de amenajare a BPHub-ului cu scopul unei utilizări flexibile și adecvate la necesitățile actuale de desfășurare a activităților în context didactic extracurricular (O2)
A07 Igienizarea, reabilitarea, amenajarea și echiparea BPHub-ului (O2)
Workshop bibliohub

Echipa 1: Stela Boldur, Maria Elena Mindirigiu, Ioana Raluca Maria, Iulia Coman, Florentina-Luiza Petrișor, Roxana Chilian, Mihnea Oprescu
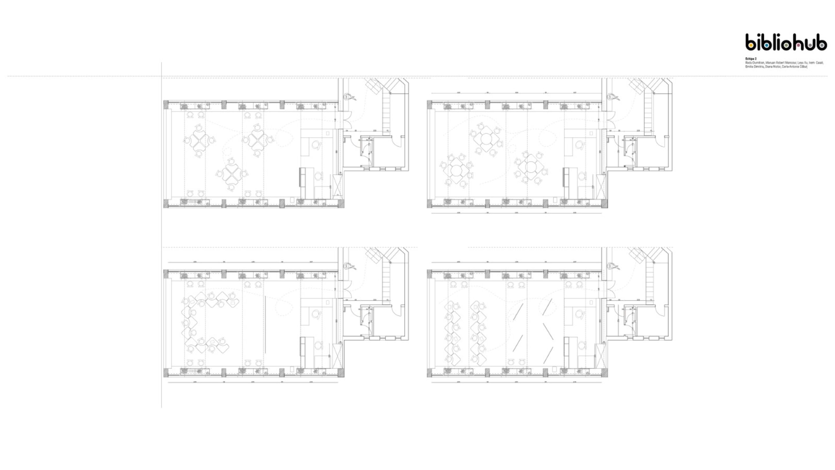
Echipa 2: Radu Dumitran, Maruan Robert Mansour, Leyu Xu, Irem Caiali, Emilia Dimitriu, Diana Nistor, Carla-Antonia Căbuț
Echipa 3: Bianca Ropotan, Delia Andreea Rențea, Maria Jacqueline Neacsu, Maria-Alexandra Florea, Paraschiva Năstase, Ilinca Dima, Teodora Rențea
Echipa 4: Andreea Luminița Tumurică, Iulia-Camelia Mocanu, Andreea Stefan, Radu Manea, Robert Cristian Aad, Roberto Rotaru, Alexandra Constantin
Echipa 5: Nicoleta Bordeanu, Briana Ambert, Ioana Jiman, Antonia Gherasim, Eduard Gologan-Datui, Phi Anh Nguyen, Arina Nicoleta Niculescu
Rezultate
Raport implementare MINCU HUBS 2023.pdf