Sesiunea internațională de diplome a Facultății de Arhitectură din UAUIM - iulie 2021

19 iulie 2021

Sesiunea internațională de diplome a UAUIM a reprezentat dintotdeauna unul dintre cele mai importante evenimente ale Universității noastre. Profesori ai marilor școli de arhitectură din întreaga lume și arhitecți apreciați pe plan internațional, au acceptat ca și în acest an, în pofida măsurilor restrictive legate de criza provocată de pandemia cu Covid 19, să facă parte din juriile de notare a diplomelor studenților noștri. Chiar dacă desfășurate în întregime în spațiul virtual, lucrările acestei sesiuni de diplome UAUIM au confirmat, încă o dată, capacitatea absolvenților noștri de a face pasul de la a fi student la a fi arhitect și au reconfirmat binemeritatul loc pe care Universitatea noastră îl ocupă între școlile de arhitectură recunoscute pe plan internațional.

Diploma session 2021.pdf

Vă invităm ca, în continuare, să parcurgeți expoziția virtuală cu selecția celor mai bune proiecte ale acestei sesiuni de diplome - UAUIM iulie 2021.

Pantaze Ilona – Best diploma project - Architecture

Ciontu Stefan Vlad

Cojocaru Ioana

Craioveanu Alma

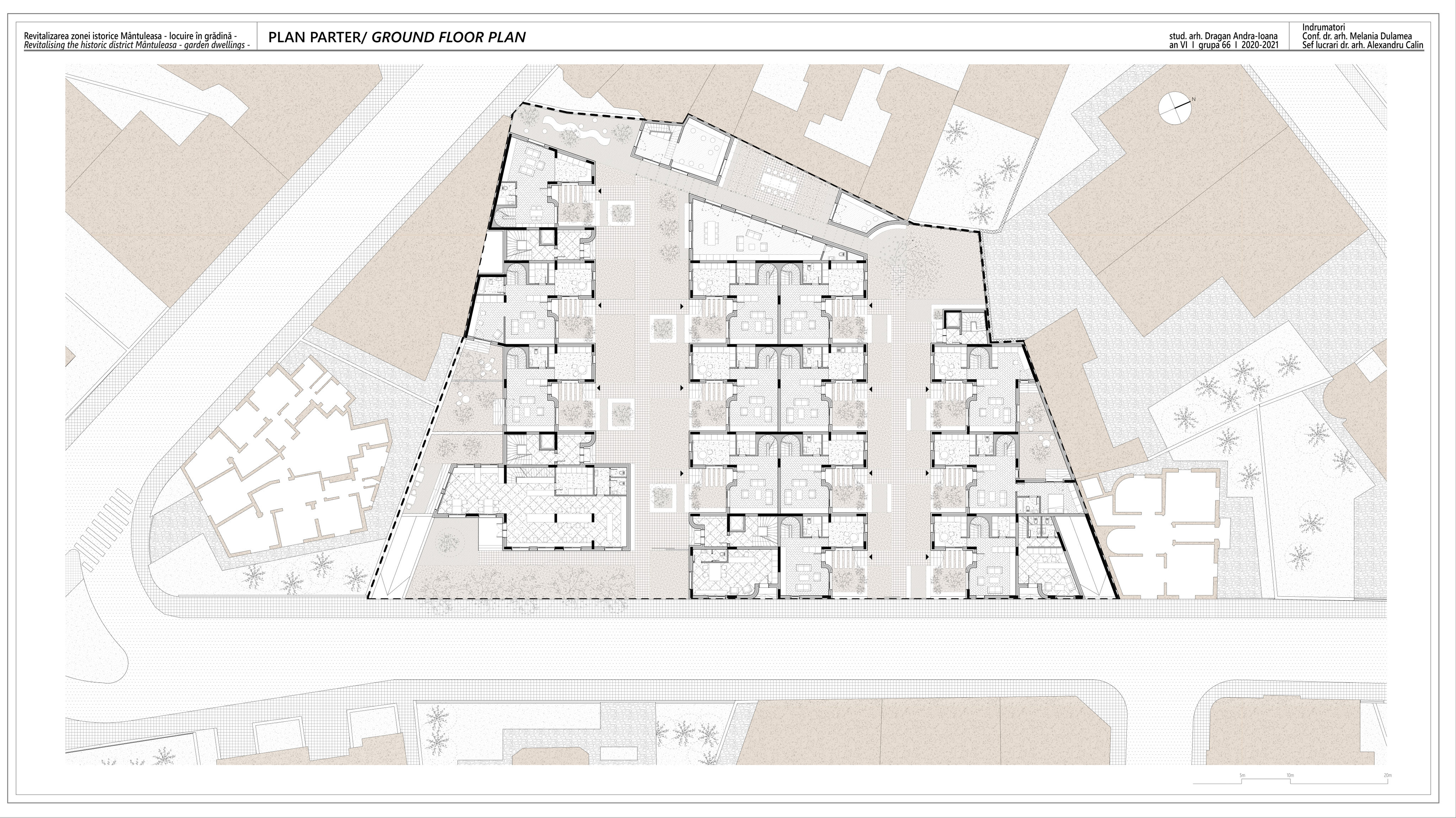
Dragan Andra-Ioana

Ducar Victor Vlad

Dumitru Roxana Daniela

Gandore Cosmin-Vasile

Joita Catinca Ioana

Lepadatu Sorin

Lungu Irina

Moldovan Alexandru Teodor

Musat Claudiu Andrei

Nicolescu Vlad Razvan

Olaru Vlad

Pintea Ruben Otniel

Pituru Maria Alexandra

Roșu Catalina Ștefana

Soreanu Adriana Emilia

Stoica Alina Marina

Suciu Daniela

Voicu Alexandru